назад в каталог
Industrial city Сынково 2
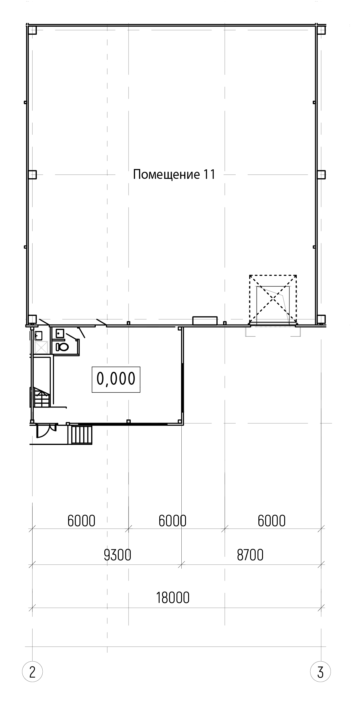
блок Bбокс 11
443.80 м2
Свободно
Продажа
Аренда
0₽
формат
Baseстоимость за 1 м2
по запросуобщая площадь
443.80 м2орех
-офисно-торговая
площадь
тип сделки
Аренда с НДСпроизводственная
площадь
готовность
готовнагрузка на пол
5 т/м2кол-во парковочных
мест легковых
высота потолков
8 мкол-во парковочных
мест грузовых
наличие мезонина
нетБлок/Бокс
Формат
Общая
площадь
площадь
Промышленно-
складская пл.
складская пл.
Офисно-
торговая пл.
торговая пл.
Тип погрузки
Готовность
Тип сделки
Стоимость
По данному фильтру боксы отсутсвуют









